Leistungsumfang
Entwurf
Planung
Ausführung als Generalplaner
Bruttogeschossfläche
1'480 m2
Bauvolumen SIA 116
7'070 m3
Wettbewerb
1. Rang
Adresse
Neubau Feuerwehrgebäude Oberlunkhofen-Jonen
Feldring
8916 Jonen
Bauherrschaft
Gemeindeverband Feuerwehr Oberlunkhofen-Jonen
8916 Jonen

Neubau Feuerwehrgebäude

Ausgangslage

Die Gemeinden Jonen und Oberlunkhofen haben sich zusammengeschlossen um gemeinsam ein neues Feuerwehrgebäude zu realisieren. Im Rahmen eines Studienauftrages erklärte die Jury das Projekt des Planungsteams baderpartner ag zum Wettbewerbssieger und erteilte im Anschluss den Auftrag zur Realisierung des Projektes.

Projekt

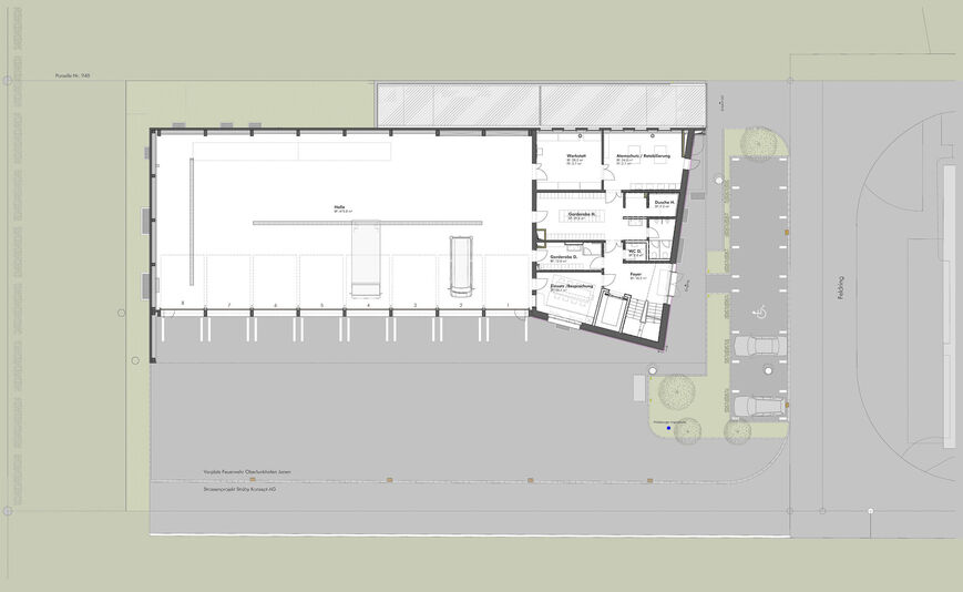
Das Feuerwehrgebäude besteht aus einem beheizten Betriebsteil in Betonmassivbauweise mit Aussenwärmedämmung und einer temperierten Fahrzeughalle in Holzkonstruktion. Auf den Zugangsseiten im Süden und Westen ist das Gebäude mit seinem grossen Vorplatz, dem gedeckten Bereich und der grossflächigen, transparenten Fassade offen und einladend gestaltet. Auf der Rückseite zeigt es sich geschlossen und introvertiert und kann somit als Rückgrat des Gebäudes abgelesen werden. Ein Grossteil des Gebäudes ist unterkellert und dient der Lagerung der Materialien und Elemente sowie der Haustechnik vom Feuerwehrgebäude.

Projektblatt

baderpartner ag - planen bauen nutzen
architekten sia

Bielstrasse 145
4500 Solothurn

032 624 51 51
solothurn@baderpartner.ch

baderpartner ag - planen bauen nutzen
architekten sia

Schachenallee 29
5000 Aarau

062 738 80 20
aarau@baderpartner.ch